ادەبيەتتەردى زەرتتەۋ بارىسىندا ءامىر تەمىردىڭ العاشقى ۇسىنعان ولشەمى كەسەنەنىڭ ۇلكەن كۇمبەزىنىڭ ديامەترىن 30 گيازعا تەڭ ەتىپ العانى انىقتالدى. قازىرگى كەزدەگى بۇل ۇزىندىق ولشەم بىرلىگى بويىنشا 1 گياز 60,6 سم-گە تەڭ. سوندىقتان وسى كۇنگى كەسەنەنىڭ ۇلكەن كۇمبەزىنىڭ ديامەترى 18,18 مەترگە تەڭ (1-سۋرەت). بۇل ءامىر تەمىردىڭ جوسپارى بويىنشا ءدىندى ناسيحاتتاۋ ماقساتىندا قۇران كارىمنىڭ سۇرەلەرىنە نەگىزدە جاسالعان. بۇعان دالەل رەتىندە قۇران كارىمنىڭ 30-سۇرەسى «رۇم», ياعني ريمدىكتەردى جەڭۋ قۇرمەتىنە ارناعان سۇرەنى ايتۋعا بولادى.
قازىرگى كەزدە بۇل ۇلكەن كۇمبەز استىندا قولادان جاسالعان تايقازان تۇر. وسى ءدالىزدى «قازاندىق زالى» دەپ اتايدى. بۇل – كەسەنەنىڭ جەتى تاۋەلسىز ورنالاسقان بولىكتەرىن بىرىكتىرىپ تۇرعان كۇمبەز. ءامىر تەمىردىڭ عيماراتتى جەتى بولىككە ءبولۋ سەبەبىن قۇران كارىمنىڭ سۇرەلەرىنەن ىزدەپ كورسەك, 7-سۇرەسى «اعرافقا» (اۋدارماسى «بيىك توسقاۋىلدار») بارىپ تىرەلەدى. سەبەبى بۇل سۇرەنىڭ ءبىرىنشى اياتىندا بىلاي دەگەن «(مۇحاممەد (س.ع.س.) بۇل ساعان تۇسىرىلگەن ءبىر كىتاپ, سوندىقتان كىربىڭدىلىك بولماسىن. بۇل ارقىلى ەسكەرتۋمەن مۇمىندەرگە ۇگىت ءۇشىن». مىنە, وسى ايات ارقىلى قۇران كارىمنىڭ ادام بالاسىنا اللا تاعالا تۇسىرگەن كيەلى كىتاپ ەكەنىن ەسكەرتكەن. سونىمەن قاتار وسى سۇرەنىڭ 7-اياتىندا بىلاي دەيدى: «ول كۇنگى تارازىلاۋ شىندىق, سوندا كىمنىڭ تارازىسى (جاقسىلىقتا) اۋىر تارتسا, مىنە سولار قۇتىلۋشىلار», ياعني بۇل ايات بويىنشا مۇسىلماندارعا جاقسىلىقتى كوبىرەك جاساۋ كەرەگىن ايتا كەلە, 45-اياتتا بىلاي دەيدى: «(ۇجماقتاعىلار مەن توزاقتاعىلاردىڭ) اراسىندا دالدا بار. جانە «اعراف» دەلىنگەن جوعارى ورىندا ەكى جاقتاعىلاردى دا الپەتتەرىنەن تانيتىن بىرەۋلەر بار. ... بۇلار ءالى جانناتقا كىرمەگەن, ءۇمىت ەتەتىندەر», ياعني مۇسىلمانداردى ءىس ارەكەتتەرى ارقىلى جانناتقا بارۋعا شاقىرۋ. زەرتتەۋ بارىسىندا نەگىزگى جەتى بولىككە ءبولۋ ماقساتىن قاراستىرا وتىرىپ, مۇسىلمانداردىڭ جانناتقا بارۋ ءۇشىن راببىمىز ءار زاماندا جەتى پايعامباردى جىبەرىپ, ءتۇزۋ جولعا سالۋ بولعانىن انىقتادىق. سونىمەن بىرگە 7-سۇرەنىڭ كەسەنەگە نەگىز بولۋ سەبەبى اللا تاعالا جەرگە ءار كەزدەردە جەتى پايعامبار جىبەرىپ, ادامزاتتى ءار ءتۇرلى قيامەتتەن قۇتقارىپ وتىرعان. سوندىقتان وسى جەتى بولىككە نەگىزدەلگەن نۇح, ھۇد, ساليح, لۇت, شۇعايىپ, مۇسا, مۇحاممەد (س.ع.س.) پايعامبارلار سەبەپكەر بولۋى مۇمكىن.سونىمەن قاتار بۇل سۇرە كەسەنەگە كەلگەن ادامداردى اقىرەت ازابىنان قورعايدى. جەتى بولىك سول كەزدەگى قۇرىلىستا پايدالانىلعان بىرقاتار جاڭاشىل ساۋلەت-قۇرىلىس شەشىمدەرىنىڭ ءبىرى بولعان. سەبەبى جەتەۋى جەكە بولىك رەتىندە, جالپى, عيماراتتىڭ شوگۋى مەن جەر سىلكىنىسى كەزىندە قۇلاۋدان ساقتاعان. بۇل – بولىكتەردىڭ استىڭعى جاعىندا قازىرگى زاماناۋي سالىنعان ىرگەتاسى جوق, دەفورماتسيالىق تىگىس بار عيمارات.
قوجا احمەت ياساۋي كەسەنەسىنىڭ كىشى كۇمبەزى بۇرىشتارداعى ءتورت ساۋلەلى جەلكەندەرگە سۇيەنىپ جاسالعان. وسى نەگىزدىڭ ۇستىنە ديامەترى 10 مەتر (17 گيازعا تەڭ) بولاتىن تسيليندر تۇرعىزىلعان. ءتسيليندردىڭ ۇستىنە 52 قابىرعالى (قىردان) تۇراتىن كۇمبەز سالىنعان. بۇل كۇمبەزدىڭ جالپى بيىكتىگى 21 مەترگە (34 گياز) تەڭ.
سونىمەن ديامەترى 17 گيازعا تەڭ ەكىنشى كۇمبەز قۇراننىڭ ء«ال-يسرا» سۇرەسى, اۋدارماسى «تۇنگى ساپار» دەپ اتالادى. وسى سۇرەنىڭ 1-اياتىندا «قۇلىن (مۇحاممەد (س.ع.س.) ءبىر ءتۇنى وزىنە بەلگىلەرىمىزدى كورسەتۋ ءۇشىن مەسجىد حارامنان ءبىز اينالاسىن مۇباراك قىلعان مەسجىد اقساعا اپارعان اللا, ءارتۇرلى كەمشىلىكتەن پاك, شەكسىز ول, ەستۋشى, ءبىلۋشى (مۇحاممەد س.ع.س. ءبىر ءتۇنى جەبرەيىل ع.س. ارقىلى بۇراققا مىنگىزىلىپ, مەسجىد حارامنان مەسجىد اقساعا اپارىلىپ, ول ارادان دا كوككە شىعارىلىپ, ءبىر دەمدە ادام بالاسىنىڭ ولشەۋلى سەزىمىنەن تىس دارەجەگە يە بولىپ قايتقان «ميعراج» ۋاقيعاسى). ال وسى سۇرەنىڭ جەتپىس توعىزىنشى اياتىندا بىلاي دەيدى: «(مۇحاممەد (س.ع.س.) تۇننەن ويانىپ (قۇرانمەن) وزىڭە ءتان ءناپىل وقى. راببىڭنىڭ سەنى ءبىر ماقتاۋلى ورىنعا جەتكىزۋىنەن ءۇمىت ەتىلەدى (بۇل زور شاپاعات ورنى)». سونىمەن قاتار 105-اياتتا: ء«بىز قۇراندى شىندىقپەن تۇسىردىك. ول شىندىق بويىنشا ءتۇستى. (مۇحاممەد (س.ع.س.) سەنى قۋانتۋ, ەسكەرتۋ ءۇشىن عانا جىبەردىك».
مىنە, وسى ولشەم كەسەنەنىڭ بارلىق گەومەتريالىق ولشەمدەرىن قۇران كارىم سۇرەلەرىمەن زەرتتەۋگە جول اشتى. كەسەنەنىڭ نەگىزگى كۇمبەزىنىڭ بيىكتىگى قازىرگى كەزدە 44 مەترگە تەڭ ەكەن, مۇنى سول كەزدەگى ولشەم بىرلىگىنە اينالدىرعاندا 72 گيازعا تەڭ بولادى. كەيبىر زەرتتەۋشىلەردىڭ ايتۋىنشا, كۇمبەز الدەقايدا بيىك بولۋى كەرەك ەدى. قۇران كارىم بويىنشا 72-سۇرە «جىن» دەپ اتالادى. بۇل سۇرەنىڭ باسىندا (مۇحاممەد (س.ع.س.) مەككەمەن ءتايىپتىڭ اراسىنداعى ناحلا دەگەن جەردە ساحابالارمەن بىرگە تاڭ نامازىن وتەگەندە, جىندار تىڭداعان), ياعني بۇل كەسەنەگە كەلگەندەردى اللا تاعالا «جىن-شايتانداردىڭ كەسىرىنەن, كوز تيۋدەن ساقتايدى» دەگەن ماعىنا شىعار. وسى سۇرەنىڭ ون التىنشى اياتىندا «(ەگەر جىندار مەن ادامدار,) ول جولدا تۇپ-تۋرا جۇرسە, ارينە, ولارعا مول سۋ ءناسىپ ەتەمىز», ياعني ون ءۇشىنشى اياتتا «راسىندا وسى تۋرا جولدى ەستىپ, وعان سەندىك. كىم راببىنا يمان كەلتىرسە, سوندا ول, كەمشىلىكتەن دە, زياننان دا قورىقپايدى», وسىلاي ءامىر تەمىر بيلەۋشى كەسەنەگە كەلگەندەردى اللا تاعالا كەمشىلىكتەر مەن جىنداردىڭ كەسىرلەرىنەن ساقتايدى دەپ شاقىرعىسى كەلگەن بولار دەپ تۇيەمىز.
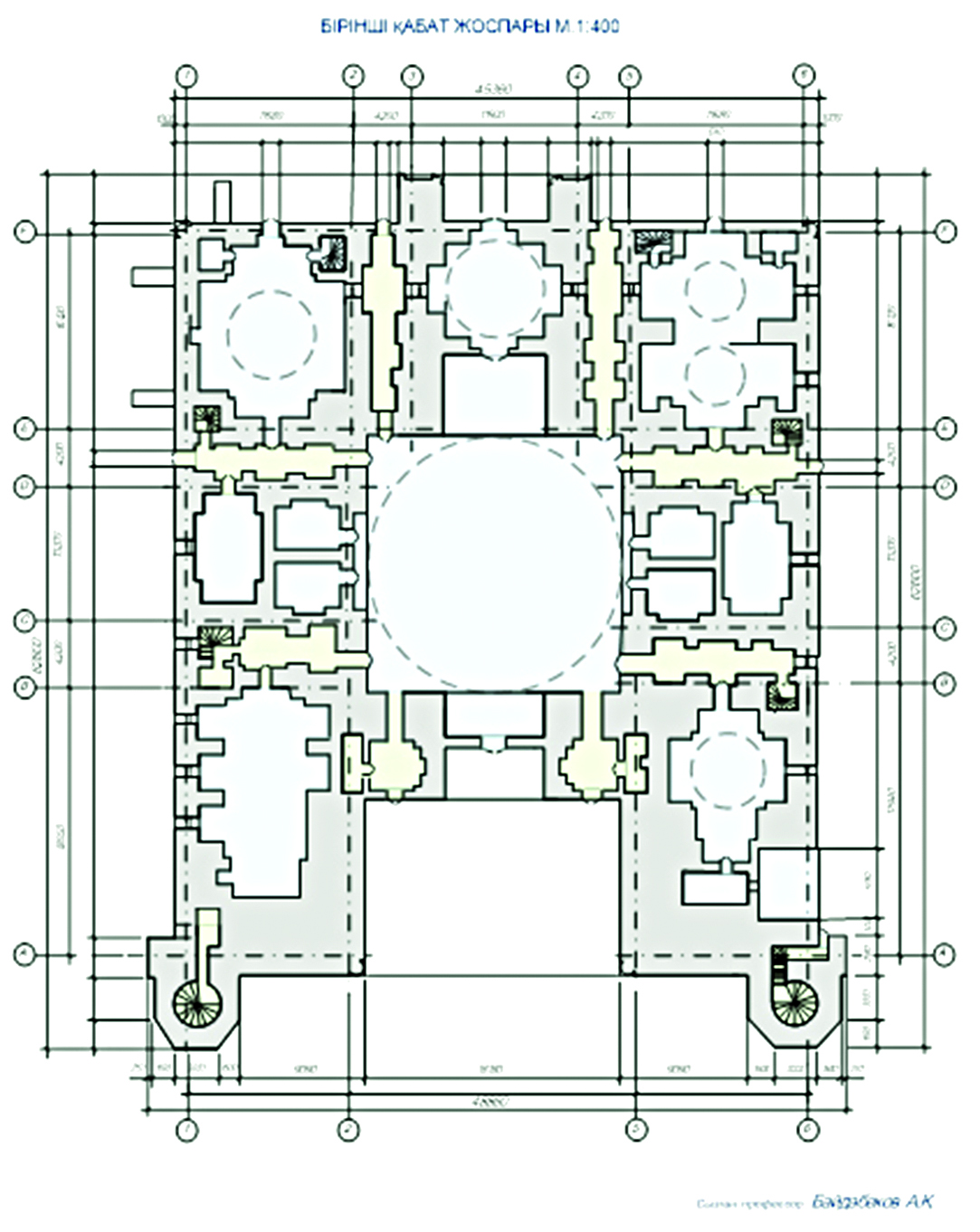
كەسەنەنىڭ ءبىرىنشى قابات جوسپارىندا كەسەنەگە كىرەبەرىس پورتالى (ويىقشاسى) كورسەتىلگەن, ونىڭ ۇزىندىعى 20 مەترگە تەڭ. بۇل ءامىر تەمىردىڭ كەزىندەگى ولشەم بويىنشا 33 گيازعا تەڭ, ياعني قۇران كارىم بويىنشا «احزاپ» سۇرەسى (بىرىككەن كۇشتەر). وسى سۇرەنىڭ ءبىرىنشى اياتىندا ء«اي, ءنابي! اللاعا تاقۋالىق ىستە دە, كاپىرلەر مەن مۇنافىقتارعا باعىنبا. راس, اللا تىم ءبىلۋشى, اسا دانا», ياعني كەسەنەگە كىرگەندە كاپىرلەردەن قورىقپاي اللاعا تاقۋالىق جاسا دەپ مۇسىلمانداردى كەسەنەگە شاقىرادى. سۇرەنىڭ وتىز ءبىرىنشى اياتىندا «سەندەردەن كىم اللاعا, پايعامبارىنا بوي ۇسىنىپ, ىزگى ءىس ىستەسە, وعان دا ەكى ەسە سىيلىق بەرەمىز. سونداي-اق وعان مول ناسىبە بەرەمىز» دەپ ادامداردى كەسەنەگە شاقىرىپ, اللاعا قۇلشىلىق جاساسا, بايلىقتارىن ەكى ەسە كوبەيتۋگە شاقىرادى. ال 73-اياتىندا وسى سۇرەنى 41 رەت وقىعان ادامنىڭ تابىسى مول ءارى بەرەكەتتى بولادى دەيدى. وسى نەگىزگى پورتالدىڭ بيىكتىگى – 37,5 مەتر, ال ەسكى ولشەم بويىنشا بۇل 62 گيازعا تەڭ, ياعني بۇل قۇران كارىمنىڭ 62-سۇرەسى «جۇما», وسى سۇرەنىڭ ون ءبىرىنشى اياتىندا «ارازداسقان ادامدارعا وقىلسا, تاتۋلاسادى» دەگەن ماعىنا بەرەدى. بۇل سۇرەدەن ءامىر تەمىردىڭ ادامداردى جۇمادا كەسەنەگە شاقىرۋ ارقىلى تاتۋلاستىرۋدى ماقسات ەتكەن سياقتى.
كەسەنەنىڭ 35-تەن استام بولمەسى بار. 12 بولمەسى ءبىرىنشى قاباتتا ورنالاسقان. وسىعان وراي قۇران كارىمدەگى 12-سۇرەنى زەرتتەۋگە تۋرا كەلدى. بۇل سۇرەنىڭ اتى – ء«جۇسىپ». سۇرەنىڭ باسى «ۇعىمىن اللا بىلەدى. بۇلار اپ-ايقىن قۇراننىڭ اياتتارى» دەپ باستالسا, سۇرەنىڭ ءۇشىنشى اياتىندا «(مۇحاممەد (س.ع.س.) ساعان بۇل قۇراندى ۋاحي ەتۋىمىزبەن وزىڭە قيسسالاردىڭ ەڭ جاقسىسىن بايان ەتەمىز. نەگىزىندە سەن بۇدان بۇرىن, ارينە, حابارسىز ەدىڭ)» دەپ جاماعاتتى قۇراندى وقۋعا شاقىرعان. ال ءتورتىنشى اياتتا (سول ۋاقىتتا ءجۇسىپ پايعامبار اكەسىنە: «اكەتايىم! راس مەن تۇسىمدە ون ءبىر جۇلدىز جانە كۇن مەن ايدى, ماعان ساجدە قىلعانىن كوردىم» دەدى) سول زاماندا ءبىزدىڭ كۇن جۇيەسىندە ون ەكى پلانەتا بارىن بىلدىرگەن. ولاردىڭ قاتارىنا بىزگە بەلگىلى پلانەتالار: نەپتۋن, يۋپيتەر, ساتۋرن, ۋران, مارس, شولپان, مەركۋري, جەر جانە كەيىننەن اشىلعان ەرگەجەيلى پلانەتالار: تسەرەرا, حاۋمەا, ماكەماكە مەن ەريدا كىرەدى.
ال ەندى قوجا احمەت ياساۋي كەسەنەسىنىڭ, ارتقى ەنى 45,360 مەتر بولسا, الدىنان قاراعانداعى ەنى 48,860 مەتردى قۇرايدى. عيماراتتىڭ جالپى ۇزىندىعى 62,600 مەتر ءتورتبۇرىشتان تۇرادى. بۇل گەومەتريالىق ولشەمدەردى 0,606 ولشەمگە كوبەيتسەك, جالپى ەنى شامامەن 29 گيازعا, ال ۇزىندىعى 37 گيازعا تەڭ. بۇل قۇران كارىمنىڭ 27-سۇرەسى ء«ان-ءنامل»-گە سايكەس كەلەدى. اۋدارماسى «قۇمىرسقالار» دەپ اتالادى. وسى سۇرەنىڭ 93-اياتىندا بىلاي دەيدى: «ۇنەمى وقىپ جۇرگەن جاندى اللا تاعالا ءتۇرلى بالەلەر مەن سيقىردان قورعايدى». ال قۇران كارىمنىڭ 29-سۇرەسى ء«ال-انكابۋت» (ورمەكشى) دەپ اتالادى. الپىس توعىزىنشى اياتىندا: «ۇمىتشاقتىقتى كەتىرۋ ءۇشىن وسى سۇرەنى جازىپ, سۋعا سالىپ ءىشۋ كەرەك».
عيماراتتىڭ ۇزىندىعى سايكەس كەلەتىن قۇران كارىمنىڭ 37-سۇرەسى «ساففات» (ساپقا تىزىلگەندەر). وسى سۇرەنىڭ 182-اياتىندا بىلاي دەگەن: «بارلىق ماقتاۋ بۇكىل الەمنىڭ راببى, اللاعا لايىق». ءامىر تەمىر وسى اياتتى جەتى رەت وقىعان ادامنىڭ ريزىعى ارتاتىنىن ءبىلىپ, كەسەنەگە شاقىرعان سەكىلدى.
عيماراتتىڭ باس قاسبەتى وڭتۇستىك-شىعىسقا, ال ءبۇيىر قاسبەتتەرى وڭتۇستىك باتىس پەن سولتۇستىك-شىعىسقا قارايتىن ەتىپ سالىنعان. باس قاسبەت نەگىزگى پورتال مەن ەكى مۇنارادان, كىرەبەرىس ءۇش ەسىكتەن جانە ۇلكەن اركادان تۇرادى. بۇل ايتىلعاندار زاماناۋي سىزىلعان ءبىرىنشى قابات جوسپارىندا كورسەتىلگەن. جوسپاردى سىزۋعا بىرنەشە سەبەپتەر بولدى. بىرىنشىدەن, وسىنداي كيەلى ورىننىڭ وسى كۇنگە دەيىن زاماناۋي جوسپارىنىڭ بولماۋى, ەكىنشىدەن, بۇل عيمارات XIV عاسىردا سالىنسا دا قازىرگى زامان تالابىنا ساي جاسالعان.
باس پورتالدىڭ ەكى جاعىنداعى عيماراتتىڭ ەكى ۇلكەن مۇناراسى بار. بۇل مۇنارانىڭ استىڭعى جاعى سەگىز جاقتى تىك پريزمادان تۇرادى. تىك پريزمانىڭ جاقتارىنىڭ ەنى 3,0 مەتر (قۇران كارىم بويىنشا 5-سۇرە ء«ال-ءمايدا» دەپ اتالادى, ماعىناسى «اسقا تولى داستارقان». 40 رەت وقىعان جانعا اللا تاعالا مول ريزىق, نەسىبە ءناسىپ ەتەدى), ال مۇنارانىڭ بيىكتىگى عيماراتتىڭ قابىرعا بيىكتىگىمەن تەڭ. مۇنارانىڭ قالعان بيىكتىگى دوڭگەلەك تىك تسيليندردەن تۇرادى. سونىمەن قوجا احمەت ياساۋي كەسەنەسىنىڭ باس پورتالعا سيممەتريا بولىپ ورنالاسقان ەكى مۇنارانىڭ جالپى بيىكتىگى شامامەن 30,56 مەترگە (50-ءشى «قاف» سۇرەسى, ءار جۇما كەشىندە 3 رەت وقىعان جاننىڭ جانارى نۇرلانادى) تەڭ. مۇنارانىڭ تومەنگى سەگىز جاقتى تىك پريزمانىڭ بەس جاعى عانا كورىنىپ تۇر, وكىنىشكە قاراي, مۇنارانىڭ بۇل بولىكتەرى بەزەندىرىلمەي قالعان.
باس پورتالدىڭ ۇزىندىعى 18,18 مەتر (ياعني 30-سۇرە), ال ەنى شامامەن 12,70 مەترگە تەڭ (21-سۇرەسى ء«ال-ءانبيا» «پايعامبارلار» دەپ اتالادى. ۇرپاعىنان تاقۋا جانداردىڭ شىعۋىن قالاعان ادام وسى سۇرەنى وقىعانى ابزال) جانە بيىكتىگى 43,43 مەتر (72-سۇرەسى ء«ال-جين» ياكي «جىن»). باس پورتالدىڭ ىشىندە كىرەبەرىس پورتالى بار. ونىڭ ۇزىندىعى 7,30 (12-سۇرەسى ء«جۇسىپ». بۇل سۇرەنى ۇنەمى وقىپ جۇرگەن ادامنىڭ اينالاسىنداعى ادامدارمەن قارىم-قاتىناسى جاقسارادى), ەنى 3,60 (6-سۇرە ء«ال-ءانام» اۋدارماسى «شارۋا مالدارى». بۇل سۇرەنى 41 رەت وقىعان ادامنىڭ توقتاپ تۇرعان ءىسى العا باسادى), ال بيىكتىگى 13,65 مەترگە (22-سۇرە ء«ال-حاج», اۋدارماسى «قاجىلىق». ۇنەمى بۇل سۇرەنى وقىپ جۇرگەن جاننىڭ ءولىمى جەڭىل بولادى) تەڭ.
وڭ جاقتاعى ءبۇيىر قاسبەتى سولتۇستىك شىعىسقا قاراي باعىتتالعان. بۇل ءبۇيىر قاسبەت ءتورتبۇرىشتان تۇرادى. قاسبەتتە ءبىر كىرەبەرىس ەسىك پەن ولشەمى 5,68ح3,85 مەتر, ياعني 9ح6, ال بيىكتىگى 11,00 مەترگە (قۇران كارىمنىڭ 18-سۇرەسى ء«ال-كاھف» , اۋدارماسى «ۇڭگىر» دەپ اتالادى. جۇما كۇنى ءبىر رەت وقىسا, كەلەسى جۇماعا دەيىن بارلىق بالەدەن جانە اقىرەت فيتناسىنان امان بولادى) تەڭ پورتال بار.

بۇدان بولەك, عيماراتتىڭ ىرگەتاسىنىڭ بيىكتىگى 2,21 مەترگە تەڭ (قۇران كارىمنىڭ 3-سۇرەسى ء«الي يمران», اۋدارماسى «يمران وتباسى». بۇل سۇرەنى قاراساق, اللا ول پەندەسىنە كۇتپەگەن جەردەن بايلىق ءناسىپ ەتەدى) بيىكتىكتە ورنالاسقان گەومەتريالىق فيگۋرالاردان تۇراتىن ىرگەتاس موزايكاسى مەن 2,50 مەتر (بۇل 4-سۇرە, اتاۋى «ان-نيسا», «ايەلدەر» دەگەن ماعىنانى بەرەدى. وتباسىندا بىرلىك پەن تاتۋلىقتى ارتتىرادى) اراب قارىپتەرىنەن جازىلعان باسقۇر بار. قاسبەتتىڭ قابىرعاسى قارا كوك كىرپىشتەن ورىلگەن ەكى رومب ءتارىزدى سەگىز قىرلى گەومەتريالىق ەلەمەنتتىڭ گوريزونتال جانە ۆەرتيكال ەكى قاتار پازل ءتارىزدى موزايكادان تۇرادى. وسىنداي قارا كوك 45 ءتورتبۇرىشتى كىشىرەك كىرپىش بار. وسى گەومەتريالىق ەلەمەنتتەردىڭ ىشىنە اشىق كوك كىرپىشتەن كۋفا قارىپىمەن ءورىلىپ جازىلعان «اللا», «مۇحاممەد», «و, جارىلقاۋشى», «بيلىك اللادا», «اللا – مەنىڭ ءامىرشىم» دەگەن سوزدەر بار.
عيماراتتىڭ سول جاق ءبۇيىر قاسبەتى وڭتۇستىك-باتىسقا قاراي ورنالاسقان. بۇل وڭ جاقتاعى ءبۇيىر قاسبەت سياقتى ءتورت بۇرىشتان تۇرادى. قاسبەتتىڭ ىرگەتاس پەن باسقۇرى جانە كىرەبەرىس ەسىگى بار. قابىرعادا قارا كوك كىرپىشتەن ورىلگەن كولبەۋ ورنالاسقان ون ەكى قىرلى ايقىش (بۇگىنگى قوسۋ تاڭباسى) تارىزدەس گەومەتريالىق ەلەمەنتتەن ەكى قاتارلى بولىپ كەلەدى. ەگەر بۇل ايقىشتىڭ كونتۋراسىن سىزىق رەتىندە قاراساق, وندا كرەست ءتارىزدى كوپبۇرىشتىڭ قىرلارى سۆاستيكانى بەرەدى. ودان بولەك, كرەست تارىزدەس كوپبۇرىشتىڭ ىشىندە قارا كوك كىرپىشپەن قاناتى بار سۆاستيكا ورىلگەن. ال وسى گەومەتريالىق ەلەمەنتىنىڭ ىشىنە اشىق كوك كىرپىشتەن كۋفا قارىپىمەن ءورىلىپ, «اللا», «مۇحاممەد», «و, جارىلقاۋشى», «بيلىك اللادا», «اللا – مەنىڭ ءامىرشىم» دەگەن سوزدەر جازىلعان.
عيماراتتىڭ ارتقى جاعىنان قاراعان اۋلالىق قاسبەت سولتۇستىك-باتىسقا قاراپ سالىنعان. اۋلالىق قاسبەتتىڭ ورتاسىندا عيماراتتان شىعىپ تۇرعان پورتال بار. پورتالدىڭ ۇزىندىعى 6,50 مەتر (10-سۇرەسى ء«جۇنىس», ء«جۇنىس پايعامبار». 21 رەت وقيتىن بولسا, اللا تاعالا دۇشپانداردىڭ جاماندىعىنان ساقتايدى), ەنى 3,23 مەتر (5-سۇرەسى ء«ال-ءمايدا», «اسقا تولى داستارقان». 40 رەت وقىعان جانعا اللا تاعالا مول ريزىق, نەسىبە ءناسىپ ەتەدى), ال بيىكتىگى 10,00 مەترگە (16-سۇرەسى «ان-ناحل», «ارالار». بۇل سۇرەنى 100 رەت وقىعان ادام ىزگى ماقساتتارىنا قول جەتكىزەدى) تەڭ جانە بەس ەسىكتەن تۇرادى.
اۋلالىق قاسبەت ەكى جاعىندا كوپ بۇرىشتى گەومەتريالىق ەلەمەنتتەردەن جاسالعان ىرگەتاس پەن اراب قارىپىمەن جازىلعان باسقۇردان تۇرادى. شىعىپ تۇرعان پورتال اۋلالىق قاسبەتتىڭ قابىرعاسىن سول جاق پەن وڭ جاققا ءبولىپ تۇر. وسى پورتالدىڭ ىشكى جاعىنداعى ەسىكتىڭ ەكى جاعىندا ورنالاسقان ون ەكى ءوزارا بۇيىرلەرى تەڭ جيىرما ءتورتبۇرىشتان تۇراتىن گەومەتريالىق فيگۋرا بار. ارتقى پورتالدىڭ ىرگەتاسى عيماراتتىڭ ءۇش جاعىنداعى ىرگەتاستاردىڭ موزايكاسىنان ەرەكشە. پورتالدىڭ كىرەبەرىس ەسىگىنىڭ ەكى جاعىندا ون ەكى سەگىز بۇرىشتان تۇراتىن گەومەتريالىق فيگۋرا بار. ال ءبۇيىر قابىرعالارىندا سيممەتريالى ورنالاسقان جيىرما سەگىز بۇرىشتىڭ ءىشى ويۋلارمەن بەزەندىرىلگەن گەومەتريالىق فيگۋرا بار. قۇران كارىمدە 8-سۇرەنى ء«ال-ءانفال» دەپ اتايدى, قازاقشاعا اۋدارعاندا «سوعىس ولجالارى» دەگەن ماعىنا بەرەدى. وسى سۇرەنىڭ 2-اياتىندا بىلاي دەلىنگەن: ء«سوزسىز مۇمىندەر, اللا ەسكە الىنسا, جۇرەكتەرى قوبالجيدى دا, ولارعا اللانىڭ اياتتارى وقىلسا, سەنىمدەرى ارتىلىپ, راببىلارىنا تاۋەكەل قىلادى».
ىرگەتاستاعى موزايكانىڭ گەومەتريالىق سىزبالارىن قاراستىراتىن بولسا, الدىمەن تەڭ ءبۇيىرلى ءتورتبۇرىشتى العان. وسى ءتورتبۇرىشتىڭ قاراما-قارسى بۇرىشتارىن ءوزارا قوسىپ, ءتورتبۇرىشتىڭ ورتاسى انىقتالعان. بۇل ءتورتبۇرىشتىڭ ورتاسى ارقىلى ءتورت دوعا جۇرگىزىپ, ءتورتبۇرىشتىڭ جاقتارىن ۇشكە بولگەن. ال وسى تەڭ ءبۇيىرلى ءتورت بۇرىشتىڭ ءىشىن تەڭ سەگىز بۇرىشقا جانە ءتورت التى بۇرىشقا, ون ەكى ءتورت بۇرىشقا بولگەن. بۇل التى بۇرىشتاردىڭ ءتورت بۇرىشىنىڭ اراسىنداعى بۇرىشتىق شاما 720 گرادۋسقا تەڭ بولادى. وسى التى بۇرىشتىڭ ءبىر بولىگىن ەكىگە ءبولىپ, 720 گرادۋس العان, ياعني قۇران كارىمنىڭ 72-سۇرەسى (جىن) بولادى.
تاپقان التىبۇرىشتاردى جيناپ, ءوزارا تەڭ قابىرعالى سەگىز بۇرىشتى – گەومەتريالىق فيگۋرانى العان. ءبىر قىزىعى, سەگىزبۇرىشتىڭ ءتورت بۇرىشى 720 گرادۋس بۇرىشتاردان تۇرسا, تۇمارعا ۇقسايتىن ءتورت بۇرىشتاردىڭ قاراما بۇرىشتى ەكىگە بولسەك 720 گرادۋس بولادى.

سونىمەن قوجا احمەت ياساۋي كەسەنەسىن سالعان ۇستالار عيماراتتىڭ كوزگە تۇسەتىن ولشەمدەردى قۇران كارىمنىڭ سۇرەلەرى مەن گەومەتريالىق فيگۋرالارعا نەگىزدەلىپ سالعانى انىقتالدى. عيماراتتىڭ حالقىمىزدىڭ كيىز ءۇي سياقتى وڭتۇستىك-شىعىسقا قاراتىپ سالۋ دا كەرەمەت بايلانىس ەكەندىگىن كورسەتەدى. باس قاسبەتتەگى مۇنارالاردىڭ جارتىسى تىك سەگىز جاقتى پريزما بولسا, قالعان ەكىنشى بولىگى تىك دوڭگەلەك تسيليندر. ال ءبۇيىر قابىرعالارىندا سەگىزبۇرىشتار مەن ون ەكى بۇرىشتارى بار. بۇل گەومەتريالىق فيگۋرالاردىڭ ىشىنە قۇران كارىمنەن سۇرەلەر جازىلعان. گەومەتريالىق فيگۋرالدى سالۋدا وتە دالدىكپەن كىرپىشتەردى كولبەۋ جانە تىك ءورۋ ارقاسىندا سالعان.
كەسەنەنىڭ اۋلالىق قاسبەتى گەومەتريالىق فيگۋرالاردان, ياعني تەڭ ءتورتبۇرىشتار مەن التىبۇرىشتاردان جانە سەگىزبۇرىشتار, ون ەكى بۇرىشتاردان تۇرادى. پورتالدىڭ ىرگەتاس موزايكاسى گەومەترياداعى شەڭبەرلەردى تەڭ ءبولۋ تاقىرىبىنا سايكەس كەلەدى. عيماراتتىڭ نەگىزگى بولىگى ىرگەتاستا گەومەتريالىق فيگۋرالاردى سالۋ جولدارى كوپ. بۇدان كەسەنەنى سالعان ۇستالاردىڭ گەومەتريانىڭ زاڭدىلىقتارىن جەتىك ءبىلۋى جانە گەومەتريا عىلىمىنىڭ قۇدىرەتىن قۇران كارىم سۇرەلەرىمەن بايلانىستىرعانى انىق كورىنەدى. وكىنىشكە قاراي, كەسەنەنىڭ قۇرىلىسى 1405 جىلى توقتاپ قالادى, سەبەبى ءامىر تەمىر قىتايعا جورىق جاسار الدىندا وتىرار قالاسىندا قايتىس بولادى.
كەزىندە ءامىر تەمىر وسى كەسەنەگە قاتىستى كورەگەندىكپەن وسيەت جازىپ قالدىرىپتى. وندا: «ەشقاشان دا, قانداي جاعدايدا دا ساتۋعا, جەكەمەنشىك سەكىلدى ۇرپاقتان-ۇرپاققا ۋاقىتشا نەمەسە تۇبەگەيلى بىرەۋگە بەرۋگە بولمايدى» دەپ قاتتى ەسكەرتىلگەن. سونىمەن قاتار عيماراتتىڭ كىرەبەرىس ەسىگىنىڭ ىشكى ماڭدايشاسىنداعى: «بۇل اۋليە مەكەن اللا تاعالانىڭ راحىمى جاۋعان پاديشا ءامىر تەمىر كورەگەننىڭ جارلىعىمەن ورناتىلدى. اللا تاعالا ونىڭ ءامىرىنىڭ عاسىرلار جاساۋىنا ءناسىپ ەتسىن!» دەگەن جازۋ دا كوپ سىردى اڭعارتادى.
اۋەز بايدابەكوۆ,
ل.ن.گۋميلەۆ اتىنداعى ەۋرازيا ۇلتتىق ۋنيۆەرسيتەتiنىڭ كافەدرا مەڭگەرۋشىسى, تەحنيكا عىلىمدارىنىڭ دوكتورى, پروفەسسورف