اۋليەاتا-تاراز جەرىندە ءXVىى عاسىردىڭ سوڭىنا قاراي مەشىت-مەدرەسە سالۋ جۇمىسى جاندانعانىن بايقايمىز. XIX عاسىردا بۇل ءىستى رەسەي يمپەرياسى ءوز يدەولوگياسى اياسىندا جۇرگىزىپ, شىركەۋ مەن مەشىت قۇرىلىسىنا قارجىلاي كومەك كورسەتكەنى اڭعارىلادى. بۇل رەتتە وسى ءىستى تۇركىستان گەنەرال-گۋبەرناتورلىعى, كەيىن ۋفاداعى مۇسىلمان ءدىني نازاراتى ء(مۇفتيات) جۇيەلەپ وتىردى. ياعني ءدىني عيبادات ورىندارىن تۇرعىزۋعا ۇكىمەت تە, جەرگىلىكتى ىسكەر ازاماتتار دا اتسالىستى.
ۇشارالداعى ءابىل يشان مەشىتى, بەستام كەنتىندەگى قاراقوجا مەشىتى, اۋليە اتاداعى ءجۇنىسباي مەشىتى, ابدىقادىر مەشىتى, نامەتباي مەشىتى – جەرگىلىكتى حالىقتىڭ سۇرانىسىنان ومىرگە كەلگەن يماندىلىق ورىندارى. سوندىقتان بۇل ءدىني عيماراتتار – قازاق حالقىنىڭ مادەني-رۋحاني بايلىعى رەتىندە تاريحقا ەندى.

ءبىز وسى جولى ءۇشارال مەشىتى عيماراتىنىڭ قۇرىلىس ماسەلەسىن قاراستىرماقپىز. ول قاراتاۋ مەن الاتاۋ ورتاسىنداعى تالاس جانە اسا وزەندەرى اياعىندا, بۇگىنگى تەرريتوريالىق ولشەممەن جامبىل وبلىسى تالاس اۋدانى ءۇشارال اۋىلدىق وكرۋگى جەرىندە ورنالاسقان.
اۋىل تۇرعىندارى «بۇل مەشىتتى جەرگىلىكتى ازاماتتاردىڭ قارجىسىنا تاشكەنت جاقتان كەلگەن يسلام ەسىمدى شەبەر سالعان» دەيدى. بىردەن ايتايىق, بۇل عيمارات جالعىز ادامنىڭ قولىنان كەلەتىن قۇرىلىس ەمەس. مۇنى ارنايى شەبەرلەر توبى جەرگىلىكتى حالىقتى جۇمىلدىرىپ سالعانى تالاس تۋدىرمايدى.
قولدا بار دەرەككە قاراعاندا, مەشىت قۇرىلىسى 1900 جىلى اياقتالىپ, پايدالانۋعا بەرىلگەن. كەيبىر دەرەكتەردە 1906 جىلى اشىلعانى جازىلادى. سوندا بۇل عيماراتتىڭ تۇرعانىنا – 124 (118) جىل. قۇرىلىستىڭ جوسپارىن ۇيلەستىرۋ, قۇرىلىسشىلاردى تارتۋ مەن ماتەريالدار دايىنداۋ ىسىمەن يسلام شەبەر اينالىسسا, ءۇشارال, توعىزكەنت ايماعىنىڭ يمامى ءابىل يشان دەگەن جالپى ۇيىمداستىرۋ ىسىمەن شۇعىلدانعان. بۇل تۋرالى مارقۇم شىعىستانۋشى-عالىم, ءدىنباسى-قايراتكەر ءابساتتار قاجى دەربىسالى «قازاقستان مەشىتتەرى مەن مەدرەسەلەرى» اتتى كىتابىندا مالىمەت بەرگەن («ارۋنا» باسپاسى, 2009 جىل, 158-بەت).
دەرەكتەرگە قاراعاندا, مەشىت قۇرىلىسى ءۇشىن قىش (كۇيدىرىلگەن كىرپىش) پەن باسقا دا قاجەتتى ماتەريالدار جەرگىلىكتى توپىراقتان دايارلانعان (1-سۋرەت). ءۇشارال مەشىتى قابىرعاسىنىڭ كولەمى 200ح130 جانە 240ح130 ەكى ءتۇرلى كۇيدىرىلگەن (اقساقالدار «قىشتى كۇيدىرۋگە شەڭگەل پايدالانىلدى» دەسەدى) كىرپىشتەن ورىلگەن. ءۇشارال توپىراعى سورتاڭ بولعاندىقتان, ىلعال مەن ب ۇلىنۋگە توتەپ بەرەتىن كىرپىش جاساۋ ءۇشىن ارنايى ۋاق مال مەن تۇيە ءسۇتى پايدالانىلعان. مۇنى ءا.دەربىسالى دە جازادى. مىنە, وسىنداي قوسپاسى بار كىرپىشتى شەڭگەلمەن كۇيدىرگەندە قۇرامىنداعى ورگانيكالىق زاتتار مەن ءسۇت مايى ىلعالعا توزىمدىلىگىن ارتتىرادى. سونىمەن قاتار كىرپىشتىڭ بەرىكتىگىن ارتتىرۋ ءۇشىن لايعا جىلقىنىڭ جالى مەن قۇيرىق قىلى, ەشكىنىڭ قىلشىق ءجۇنى قوسىلعان.
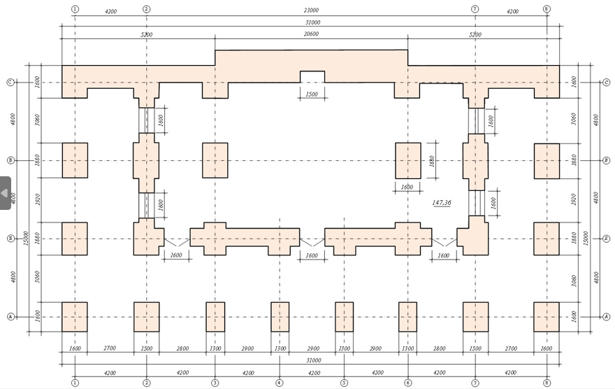
عيماراتتىڭ جوسپارى ءتورتبۇرىشتى, سونداي-اق ولارعا ءۇش جاعىنان جاپسارلاس اشىق گالەرەيا ءتورتبۇرىشتى باعانالارداعى جەلكەندەردىڭ كومەگىمەن شىعارىلعان, توعىز كىشى كۇمبەزبەن جابىلعان. مەشىتتىڭ توبەسى جالپى سانى 16 (ون التى) كۇمبەزبەن كومكەرىلگەن. عيمارات كولدەنەڭ سەگىز كووردينتسيالىق جانە بويلىق ءتورت كووردينتسيالىق وستەن تۇرادى. بۇل وستەردە جيىرما سەگىز باعان ورنالاسقان. مۇنداي عيماراتتى باعانالىق ساۋلەتتىك شەشىم سول زاماننىڭ وزىق ارحيتەكتۋراسى ەدى. باعانالى ءپىشىمدى عيمارات سول مەشىت قۇرىلىسىنىڭ ۇزاقتىعى مەن بەرىكتىگىنە اسەر ەتكەن. بۇل باعانداردىڭ قيمالارى, ياعني ەنى مەن ۇزىندىعىنا بايلانىستى 1,2ح1,6 م., 1,3ح1,6 م. جانە 1,3ح1,88 م. ءۇش ءتۇرلى. ال عيمارات باعانالارىنىڭ بيىكتىگى ورتا ەسەپپەن 2,4 مەترگە تەڭ. عيماراتتىڭ وڭتۇستىك-باتىس قابىرعاسى تۇتاستاي كىرپىشپەن قالانعان. ونىڭ بيىكتىگى 4 500 مەتر. باعانالار اراسىن قوسىپ, ءۇش دالىزدەن تۇراتىن مەشىت بولمەلەرى سالىنعان, ونىڭ كولەمى – 147,36 شارشى مەتر.
مەشىتتىڭ سولتۇستىك-شىعىس جاعىندا مەشىتكە كىرەتىن ءۇش ەسىك ورنالاسقان. بۇل ەسىكتەردىڭ ەنى – 1,6 م, بيىكتىگى – 2,1 م-گە تەڭ. ورتاڭعى ەسىككە قاراما-قارسى مەشىتتىڭ وڭتۇستىك-باتىس جاعىنداعى قابىرعاسىندا ميحراب قۋىسى بار. ونىڭ ۇزىندىعى – 1,5 م, ال ەنى 0,62 م-گە تەڭ. مەشىتتىڭ سولتۇستىك-باتىس پەن وڭتۇستىك-باتىس ءبۇيىر قابىرعالارىندا ەدەنگە دەيىنگى ەكى-ەكىدەن ءتورت ەسىك ءتارىزدى تەرەزە بار. وسى تەرەزە ويىعىنىڭ ولشەمى: ەنى – 1,5 م, ۇزىندىعى – 2,0 م.
عيماراتتىڭ 28 (جيىرما سەگىز) باعاناسى مەشىتتى ون التى شارشىعا بولەدى. بۇل ون التى شارشىنىڭ ۇلكەنى كولدەنەڭ 3 پەن 6 كوورديناتسيالىق وسپەن جانە بويلىق ب مەن س كوورديناتسيالىق ءوس اراسىندا بولادى. شارشى مەشىتتىڭ ىشكى بولمەسىن ورتالىق ءدالىزدى, ياعني ۇلكەن كۇمبەزدىڭ نەگىزىن بەرەدى. كۇمبەز نەگىزىنىڭ سىرتقى ديامەترى شامامەن – 10,8 م, ال ۇلكەن كۇمبەزدىڭ ىشكى ديامەترى شامامەن 9,3 م-گە تەڭ. كۇمبەزدىڭ بيىكتىگى شامامەن 9,5 م مەشىتتەگى كىشكەنتاي كۇمبەزدەردىڭ سىرتقى ديامەترى شامامەن 3-2,9 م, ىشكى ديامەترى – 2,4 م. ال كۇمبەزدىڭ بيىكتىگى شامامەن 2 م بولدى. بۇل كۇمبەزدەر جيىنتىعى عيماراتتىڭ جابىنىن وتە ساۋاتتى جاساۋعا سەبەپ بولعان.
ءبىز جوعارىداعى كورسەتكىشتەردى نەگىزگە الا وتىرىپ, قازىرگى زاماناۋي قۇرىلىس سىزبالارى ەرەجەسىن پايدالانىپ, ەسكى مەشىتتىڭ جوسپارىن ازىرلەدىك (2-سۋرەت). جوسپاردى سىزۋداعى ماقسات – ءبىرسىپىرا دەرەكتە وسى عيماراتتىڭ «ەنىن 10,2 م, ال ۇزىندىعىن 12,5 م» دەپ قاتە كورسەتكەن. وكىنىشكە قاراي, بۇل ولشەم شىندىققا سايكەس ەمەس. عيماراتتىڭ باس قاسبەتى جەتى اركادان تۇرسا, ال ءبۇيىر قاسبەتتەرى ءۇش اركادان تۇرادى (1-سۋرەت). بۇل – عيماراتتىڭ ۇزىندىعى ەكى ەسەدەن استام دەگەن ءسوز.
تاعى ءبىر جاڭساقتىق, كوپتەگەن دەرەكتە (ينتەرنەت جەلىسىندە كەزىپ ءجۇر) ۇشارالداعى مەشىتتى ابدۋللا يشان سايدي (1836–1914) ەسىمىمەن اتايدى. اشىق دەرەك كوزىنەن بۇل كىسىنىڭ باشقۇرتستاندا سايتباتتال قازىرەتتىڭ وتباسىندا دۇنيەگە كەلگەنىن, 9 جاسىندا اتا-اناسىنان ايىرىلىپ, ناعاشى اتاسىنىڭ تاربيەسىندە وسكەنىن, مەدرەسەدە ءتالىم العانىن بىلەمىز. ابدۋللا يشان سايدي 1853 جىلى گەنەرال ۆ.پەروۆسكيدىڭ باسقارۋىمەن پاتشالىق رەسەيدىڭ سىرداريا جورىعىنا قاتىسادى. اسكەري قىزمەتتەن سوڭ ءبىلىمىن بۇحارادا, حورەزمدە, ىستانبۇلدا جەتىلدىرەدى. بۇحارادا مەدرەسە اشىپ, جىبەك وڭدەۋمەن اينالىسادى. شىعىس ەلدەرىنىڭ تۇرمىس تىرشىلىگى مەن مادەنيەتىن, ءدىن ءىلىمىن جەتىك مەڭگەرەدى. اراب, پارسى تىلدەرىندە ولەڭ جازىپ, ۇستاز جانە سوزگە شەشەن ءدىلمار رەتىندە كوپشىلىككە تانىلادى. كەيىن باشقۇرت جەرىندەگى تۋعان اۋلىندا مەشىت تۇرعىزىپ, 1913 جىلى ناۋقاستان قايتادى. بىزدىڭشە, مالىمەت ازدىعىنان جۇرتشىلىق وسى ابدۋللانى ءۇشارال مەن توعىزكەنت يمامى بولعان ءابىل يشانمەن شاتاستىرعان. سوندىقتان تۇركىستان ءوڭىرىنىڭ تاريحى ساقتالعان تاشكەنت ءارحيۆىن مۇقيات قاراۋىمىز قاجەت. ويتكەنى ول كەزدە مەشىت سالۋعا رۇقسات الۋ مەن ونىڭ ساۋلەتتىك سىزباسى مىندەتتى تۇردە بەكىتىلىپ تىركەلگەن.
ءبىز بۇل شاتاستىرۋدىڭ نەگىزىن مەشىت ولشەمىنەن بايقاپ وتىرمىز. قازاق مەشىتىنە باشقۇرت مەشىتىنىڭ اۋدانى «كوشىرىلە» سالعان. شىن مانىندە, ءۇشارال مەشىتىنىڭ اۋدانى مارقۇم ءا.دەربىسالى كىتابىندا جازىلعانداي, ەنى – 15 م, ۇزىندىعى – 31 م. ءبىز وسى تاريحي ورىنعا نيەتتەنىپ بارىپ, ونى ارنايى ولشەپ تە كوردىك.
بۇدان بولەك, «مەشىت عيماراتى بۇزىلىپ, قايتا جوندەلگەن» دەگەن دەرەك تە بار. مەشىتتىڭ تەك قانا ارتقى قابىرعاسىنداعى 10-12 شارشى مەتر اۋماق كىرپىشىن ءبىر يمانسىزدار بۇزىپ, الىپ كەتكەن. كەيىن مەشىتتى قايتا جوندەۋ كەزىندە الىنعان كىرپىش ورنى تاسپەن قالانعان.
تاعى ايتاتىن جايت, استانا قالاسىنداعى «اتامەكەن – قازاقستان» كارتاسى ەتنومەموريالدىق كەشەنىندە ەلىمىزدىڭ اتاقتى ەسكى ەسكەرتكىشتەرىنىڭ ماكەتتەرى تۇر. سونىڭ اراسىندا ءۇشارال مەشىتى نوبايى دا بار. وكىنىشكە قاراي, ونىڭ ۇلكەن كۇمبەزى دۇرىس جاسالماعان. ماكەتتەگى كۇمبەز تۇركىستانداعى قوجا احمەت ياساۋي كەسەنەسى كۇمبەزىنىڭ ءساتسىز «كوشىرمەسى» سەكىلدى.
ءۇشارال مەشىتى – بىرنەشە سالانىڭ زەرتتەۋشىلەرى ء(دىنتانۋ, تاريح, ەتنوگرافيا, ارحيتەكتۋرا, قۇرىلىس, ديزاين, ت.ب.) ءۇشىن تىڭ تاقىرىپ. ايتالىق, تۇرعىزىلعانىنا 100 جىل وتسە دە, بۇل عيماراتتىڭ قابىرعالارىنان جارىلعان سىزات تاپپايسىز. بۇل – مەشىت ىرگەتاسى وتە ساۋاتتى جاسالعانىن اڭعارتادى. ەكىنشى, ۇلكەن كۇمبەز عاسىرلىق ءتۇرلى اتموسفەرالىق كۇشتەرگە توتەپ بەرۋى – ارنايى زەرتتەۋدى قاجەت ەتەدى.
وسى ساپا ءۇشارال مەشىتى – ساۋلەت ونەرىنىڭ بيىك ۇلگىسى ءارى مۇسىلماندىق شىعىستاعى ماڭىزدى رۋحاني ەسكەرتكىش ەكەنىن اڭعارتادى. ولاي بولسا, ءدال بۇل مۇرانى تالاس اۋدانى, جالپى جامبىل وبلىسى الەمدىك تۋريستەرگە, عالىمدارعا ماقتانىشپەن كورسەتە الادى. سوندىقتان دا اقىلدى اعا بۋىن سوناۋ كەڭەس كەزەڭىندە, دالىرەك ايتساق, 1982 جىلى ونى رەسپۋبليكالىق ماڭىزى بار تاريح جانە مادەنيەت ەسكەرتكىشتەرى تىزىمىنە ەنگىزۋگە مۇرىندىق بولدى.
عاسىردان استام تاريحى بار مەشىتتىڭ ۋاقىت سىنىنا, اسىرەسە اتەيزم زامانىنىڭ ءتۇرلى بۇلدىرگىش ارەكەتىنە توتەپ بەرۋى – وسى ءوڭىر جۇرتشىلىعىنىڭ اتا داستۇرگە ادالدىعىن, يماندىلىقتى قاستەر تۇتقانىن كورسەتەدى.
راس, بالا كەزىمىزدە بۇل مەشىتتىڭ قورشاۋسىز, ەسىك-تەرەزەسىز, اسا كۇتىمسىز كۇيىن كورگەن ەدىك. ۇلكەندەر جاعى ءدىني عيمارات كەڭەس وكىمەتىنىڭ العاشقى جىلدارىندا قويما, كەيىن ءتىپتى مالقورا بولعانىن وكىنىشپەن ايتىپ وتىراتىن. مۇنداي اۋىر جاعداي كەڭەستىك بيلىك قولاستىنداعى بارلىق رەسپۋبليكادا وتكەن. سوندىقتان ونىڭ كۇناسى – ءدىنسىز وكىمەت پەن كۇردەلى قوعامنىڭ موينىندا. ءبىز ەندى باردى ۇقساتا ءبىلۋىمىز كەرەك.
وسىنى ويلاعان جامبىل وبلىسى تالاس اۋدانى اكىمدىگى ءۇشارال, بەستام مەشىتتەرىن مادەنيەت ەسكەرتكىشى رەتىندە كۇتۋ مەن زەرتتەۋدىڭ جەرگىلىكتى جوباسىن جۇزەگە اسىرۋعا جۇمىلىپ وتىر. ارينە, بۇل كەشەندى جۇمىسقا ەلەۋلى مەملەكەتتىك قولداۋ قاجەت دەپ سانايمىز. ماسەلەن, وسى جاقسى باستامانى عىلىم جانە جوعارى ءبىلىم مينيسترلىگى, مادەنيەت جانە اقپارات مينيسترلىگى, وبلىس اكىمدىگى جاريالايتىن عىلىمي, مادەني جوبا اياسىندا دا ورىنداۋعا بولار ەدى. سوندا تالاستاعى ايرىقشا مەشىتتەردىڭ تاريحى تۇگەندەلىپ, ساۋلەت-قۇرىلىس سىزباسى جاسالىپ, ۇرپاققا باياندى مۇرا بولىپ قالار ەدى.
اۋەز بايدىبەكوۆ,
ل.ن.گۋميلەۆ اتىنداعى
ەۇۋ پروفەسسورى,
تەحنيكا عىلىمدارىنىڭ دوكتورى